販売価格:3780万円
所在地:八尾市教興寺1丁目193-2
交通:近鉄大阪線 高安駅 徒歩9分
敷地面積:200.31㎡
延床面積:445.18㎡
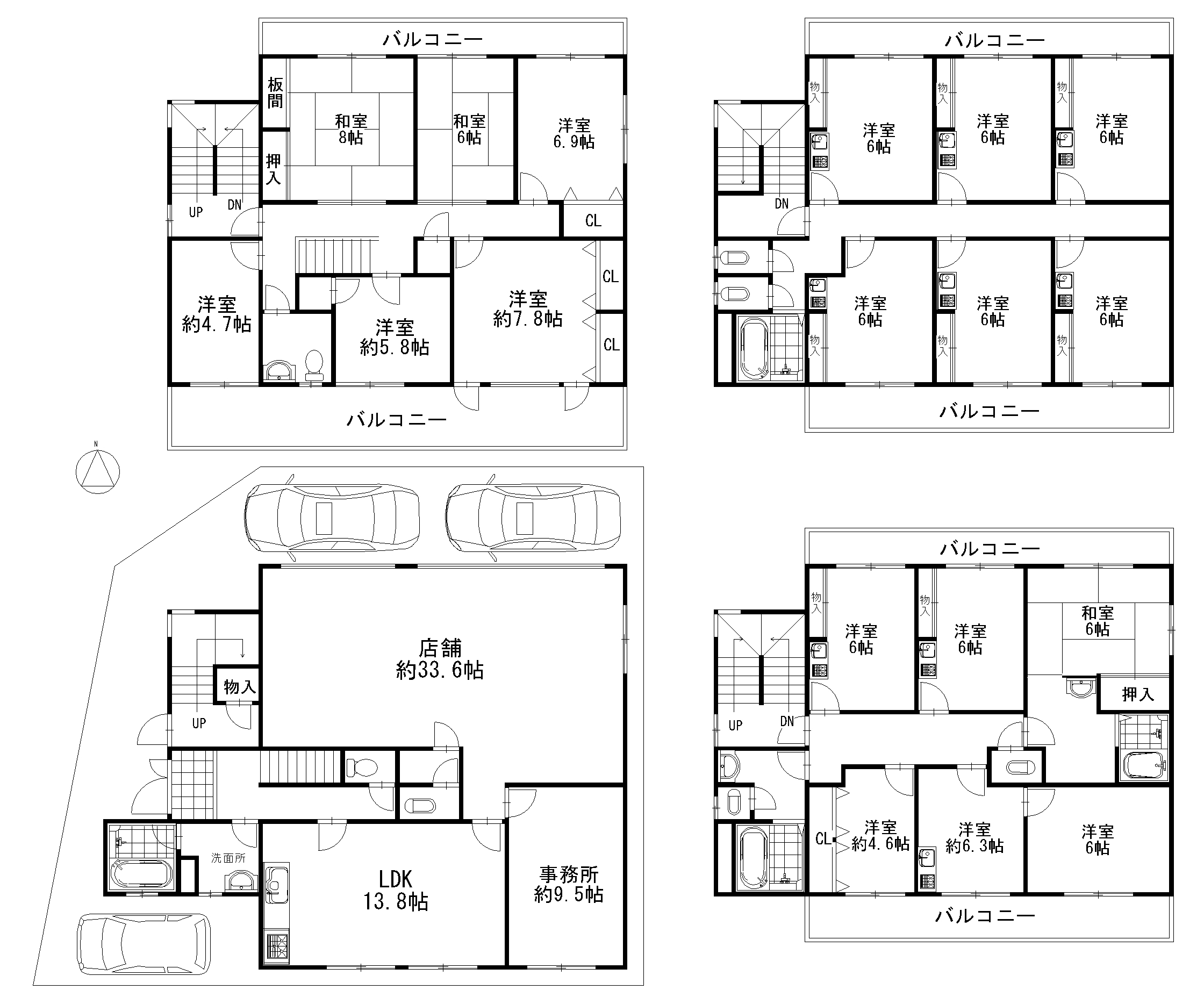
間取り:17LDK+DK+店舗+事務所
前道6mの角地です
店舗部分33.6帖、事務所部分9.5帖、事業用として十分お使いいただけます
住宅部分17LDK+DKで浴室トイレも複数ございます
;)
《SOLD OUT》八尾市教興寺1丁目店舗事務所付き住宅
ー
八尾市教興寺1丁目193-2
近鉄大阪線 高安駅 徒歩9分
ー
ー
ー
ー
ー
宅地
第2種中高層住居専用地域
200%
60%
ー
ー
北側6m 西側6m
ー
-
200.31㎡
445.18㎡
3780万円
17LDK+DK+店舗+事務所
鉄骨造
空室
平成7年6月建築
所有権
ー
ー
ー
ー
ー
25年
相談
売主
所在地: 八尾市教興寺1丁目193-2